Multifunctional building auxiliary facilities

Multifunctional building auxiliary facilities
Multifunctional building auxiliary facilities
Multifunctional building auxiliary facilities
Multifunctional building auxiliary facilities
Multifunctional building auxiliary facilities
Multifunctional building auxiliary facilities
Multifunctional building auxiliary facilities

Mixed-use building with the use of auxiliary use of energy-efficient technologies. Moscow. Krasnogorsk district.

 

  • Building capacity - 854 m3
  • Built-up area - 178 m2
  • Total area - 225 m2
  • The area of ​​heated space (residential, utility and additional) - 209.86 m2

 
The land on which the building is planned to be in private ownership, is polygonal in shape and borders with neighboring areas - from the southern and eastern sides, with passages - from the north, west and north-east. On the site are two-storey house, garden furniture, barbecue, complete landscaping and gardening. The location of the proposed building - in the north-eastern part of the site.

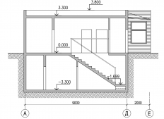
Space and layout of the building is determined by the purpose and relationship of the available space in it. Building is designed for detached, single aboveground and one basement floor.

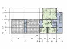
Functional zoning involves placing on the ground floor area of ​​creative workshop area and the staff in the main volume of the heated and unheated garage for four cars in the basement - recreation and spa (home theater, billiard room, a steam room), as well as storage rooms, laundry and maintenance premises. Each of the areas of the first floor has a separate entrance. The main part of the basement floor has an open plan, output directly to the outside are on-pace swing ladder, separated from the other rooms.

Continuity of insulation of the building envelope of the highly insulating materials, lack of cold bridges, integrity is a must.
 

Exterior windows and doors of the building heated - energy efficient windows - PVC, wood, aluminum, triple / quadruple glazed windows, possibly with argon filling in the cells with the resistance to heat transfer at least 1.2 M2X ° C / Watt.