Multifunktionales Gebäude Hilfseinrichtungen

Multifunktionales Gebäude Hilfseinrichtungen
Multifunktionales Gebäude Hilfseinrichtungen
Multifunktionales Gebäude Hilfseinrichtungen
Multifunktionales Gebäude Hilfseinrichtungen
Multifunktionales Gebäude Hilfseinrichtungen
Multifunktionales Gebäude Hilfseinrichtungen
Multifunktionales Gebäude Hilfseinrichtungen

Gemischt genutzte Gebäude unter Verwendung von zusätzlichen Einsatz von energieeffizienten Technologien. Moskau. Krasnogorsk Bezirk.

 

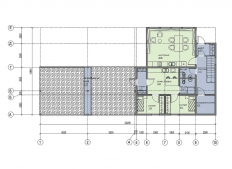
Bauvolumen - 854 m3

• Bebaute Fläche - 178 m2

• Gesamtfläche - 225 m2

• Der Bereich der beheizten Raum (Wohn-, Versorgungs-und weitere) - 209,86 m2


Das Grundstück, auf dem das Gebäude geplant, in Privatbesitz sein, wird eine polygonale Form und Grenzen mit benachbarten Gebieten - von den südlichen und östlichen Seiten, mit Passagen - aus dem Norden, Westen und Nordosten. Auf dem Gelände sind zwei-geschossiges Haus, Gartenmöbel, Grill, komplette Garten-und Landschaftsbau. Die Lage des geplanten Gebäudes - in der nord-östlichen Teil des Geländes.

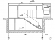
Raum und Gestaltung des Gebäudes wird durch den Zweck und die Beziehung der verfügbare Platz in ihr bestimmt. Gebäude ist für freistehend, ober-und ein Untergeschoss konzipiert.

Funktionale Zonierung geht darum, im Erdgeschoss Bereich kreativer Workshop-Bereich und das Personal in der Haupt-Volumen der beheizten und unbeheizten Garage für vier Autos in den Keller - Erholung und Wellness (Heimkino, Billardzimmer, ein Dampfbad), sowie Lagerräume, Waschküche und Wartung Räumlichkeiten. Jeder der Bereiche der ersten Etage hat einen separaten Eingang. Der größte Teil der im Untergeschoss verfügt über eine offene, ausgegeben werden direkt nach außen auf Tempo Schaukel Leiter, von den anderen Räumen getrennt.

Kontinuität der Dämmung der Gebäudehülle der hochisolierenden Stoffen, Mangel an Kältebrücken, ist Integrität ein Muss.

Exterior Fenster und Türen des Gebäudes beheizt - energieeffizienten Fenstern - PVC, Holz, Aluminium, triple / vierfach verglasten Fenstern, möglicherweise mit Argonfüllung in den Zellen mit dem Widerstand gegen Wärmeübertragung mindestens 1,2 M2X ° C / Watt.